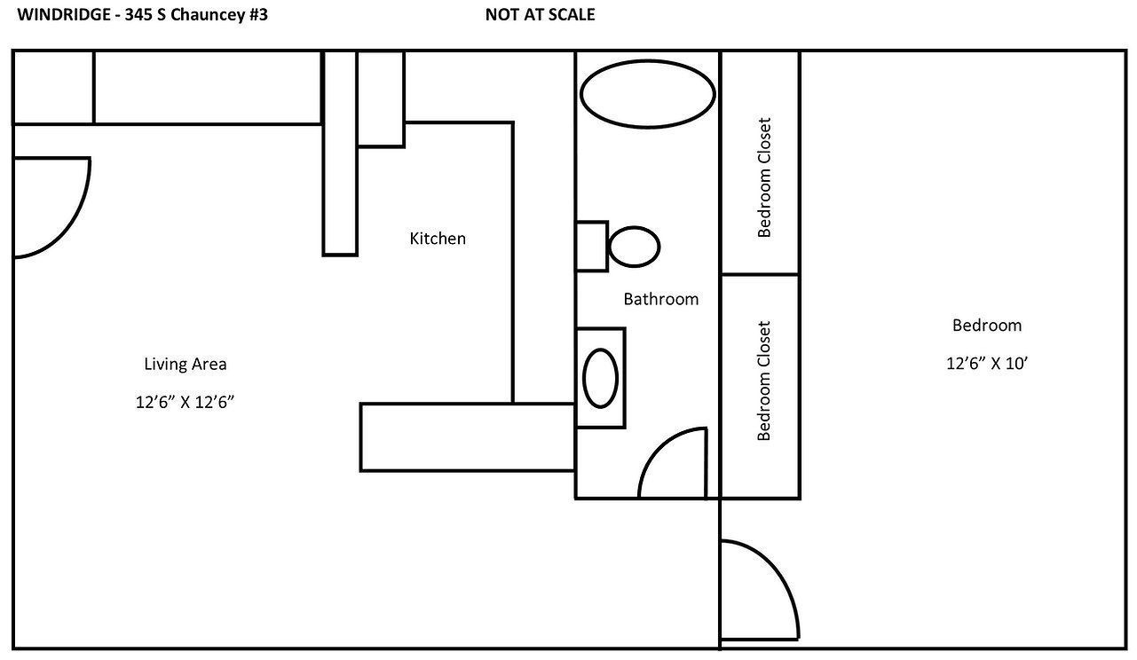
Quick Highlights:
Beds
1
Baths
1
Square Footage
403
Features
- Bonus Storage for Each Unit in Laundry Room
- Patio or Balcony
- Laundry On-site
Appliances
- Fridge
- Oven
- Microwave
- Dishwasher
Utilities
Paid by Resident:
Electric
Cable
Internet
Paid by Muinzer:
Trash
Water
Sewage











