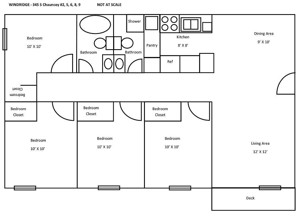
Quick Highlights:
Beds
4
Baths
1.5
Square Footage
941
Features
- Bonus Storage for Each Unit in Laundry Room
- Patio or Balcony
- Laundry On-site
Appliances
- Fridge
- Oven
- Microwave
- Dishwasher
Utilities
Paid by Resident:
Electric
Cable
Internet
Paid by Muinzer:
Trash
Water
Sewage











