THE LANDON

419 Harrison St West Lafayette, IN 47906


VIEW AVAILABILITY

Quick Highlights:

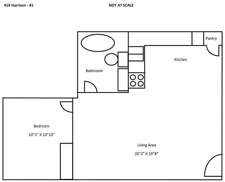
Beds

1

Baths

1

Square Footage

554

Features

  • Open Floor Plan
  • Laundry On Site

Appliances

  • Fridge
  • Oven
  • Microwave

Utilities

Paid by Resident:

Electric

Cable

Internet

Paid by Muinzer:

Trash

Water

Sewage

Photo Gallery

Click on any photo to enter the photo gallery.

Floor Plans