THE ICON

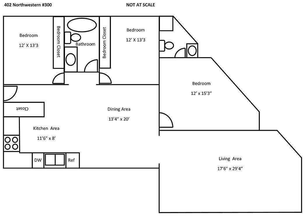
402 Northwestern Ave West Lafayette, IN 47906


VIEW AVAILABILITY

Quick Highlights:

Beds

3

Baths

2

Square Footage

1498

Features

  • Huge Living Room
  • Laundry On Site

Appliances

  • Fridge
  • Oven
  • Microwave
  • Dishwasher

Utilities

Paid by Resident:

Electric

Cable

Internet

Paid by Muinzer:

Trash

Water

Sewage

Photo Gallery

Click on any photo to enter the photo gallery.

Floor Plans