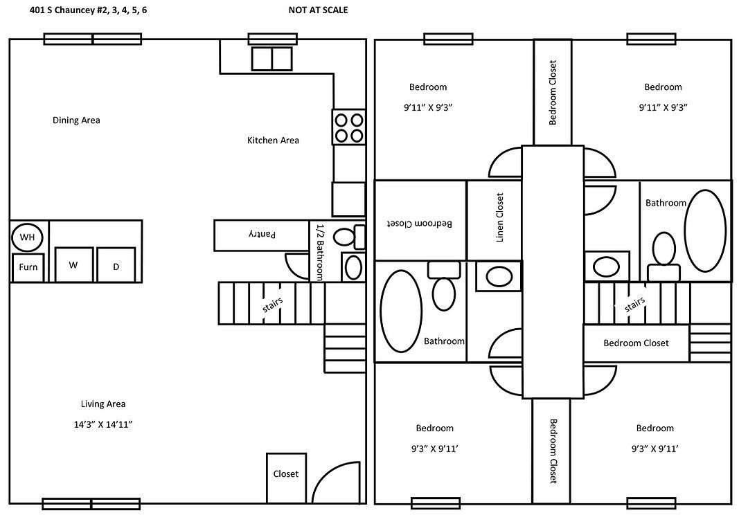
Quick Highlights:
Beds
4
Baths
2.5
Square Footage
978
Features
- Extra Storage Space
- Shared Patio Space
- Laundry In Unit
Appliances
- Fridge
- Oven
- Microwave
- Dishwasher
- Washer and Dryer In Unit
Utilities
Paid by Resident:
Electric
Water
Sewage
Cable
Internet
Paid by Muinzer:
Trash



