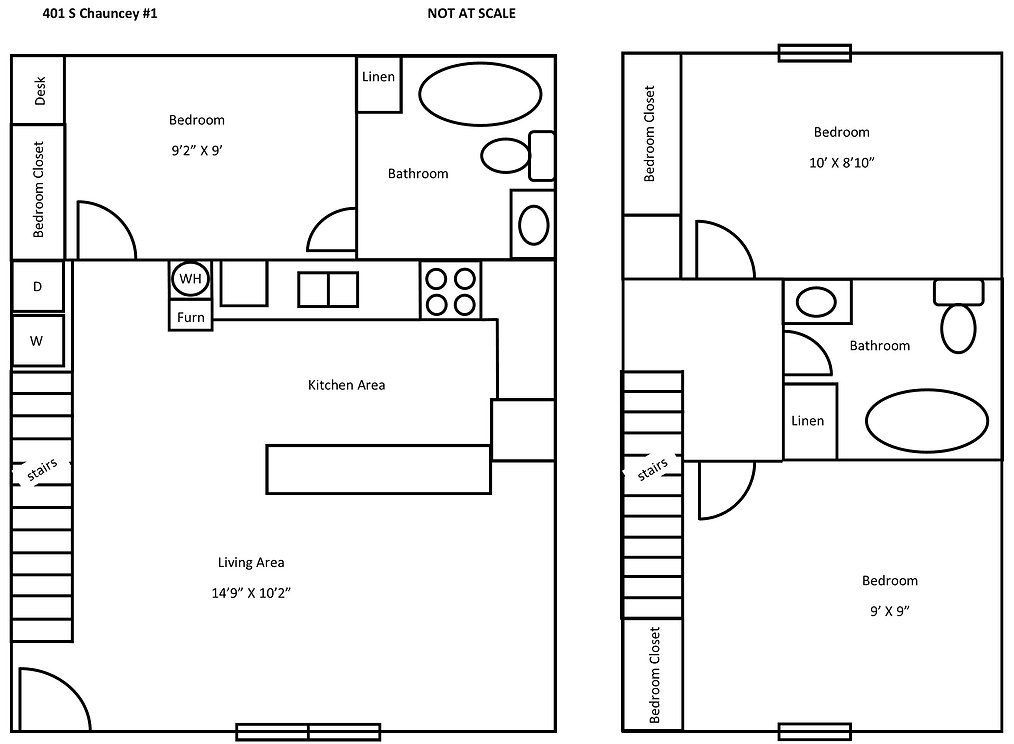
Quick Highlights:
Beds
3
Baths
2
Square Footage
781
Features
- Breakfast Bar
- Bathroom in Lower Bedroom
- Laundry In Unit
Appliances
- Fridge
- Oven
- Microwave
- Dishwasher
- Washer and Dryer In Unit
Utilities
Paid by Resident:
Electric
Water
Sewage
Cable
Internet
Paid by Muinzer:
Trash



