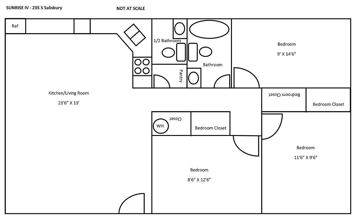
SUNRISE 4

235 S Salisbury St West Lafayette, IN 47906

VIEW AVAILABILITY

Quick Highlights:

Beds

3

Baths

1.5

Square Footage

737

Features

  • Balcony
  • Roomy Half Bath
  • Laundry Nearby

Appliances

  • Fridge
  • Oven
  • Microwave
  • Dishwasher

Utilities

Paid by Resident:

Electric

Cable

Internet

Paid by Muinzer:

Trash

Water

Sewage

Photo Gallery

Click on any photo to enter the photo gallery.

Floor Plans