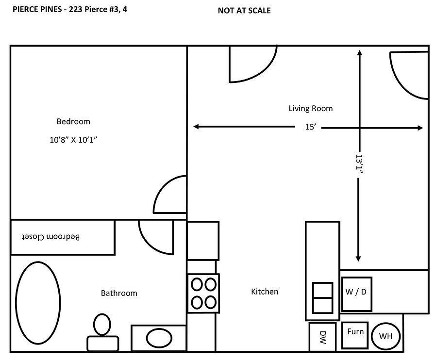
Quick Highlights:
Beds
1
Baths
1
Square Footage
434
Features
- Breakfast Bar
- In Unit Laundry
Appliances
- Fridge
- Oven
- Microwave
- Dishwasher
- Washer and Dryer In Unit
Utilities
Paid by Resident:
Electric
Water
Sewage
Cable
Internet
Paid by Muinzer:
Trash










