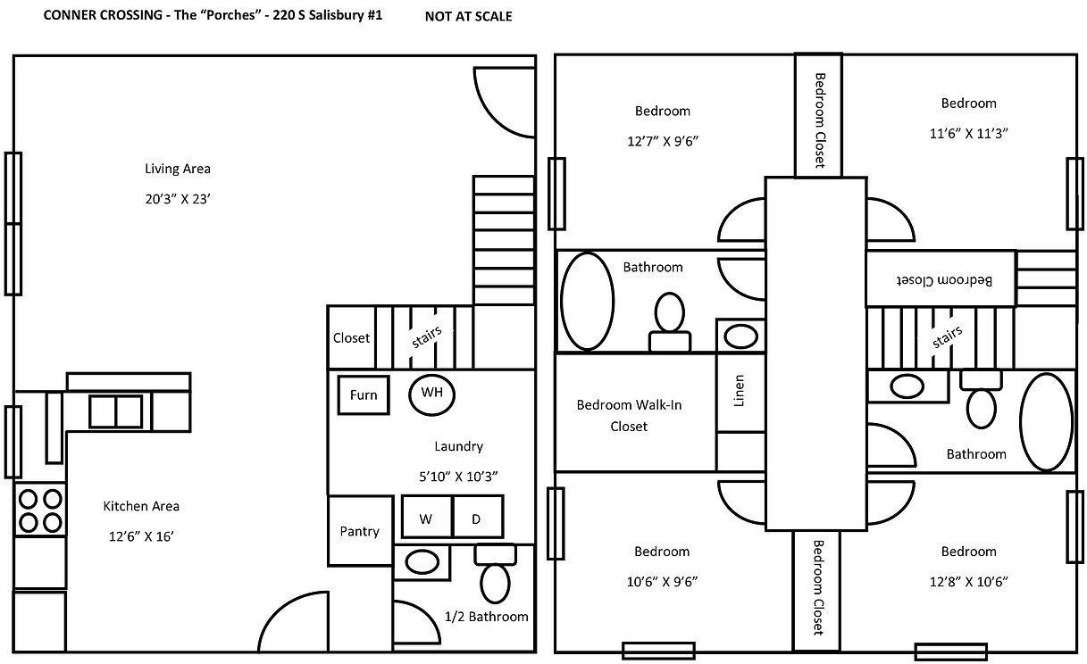
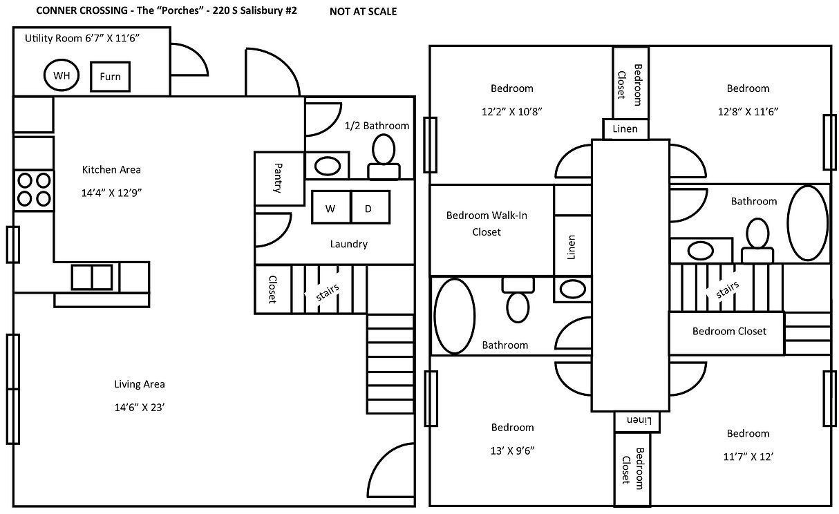
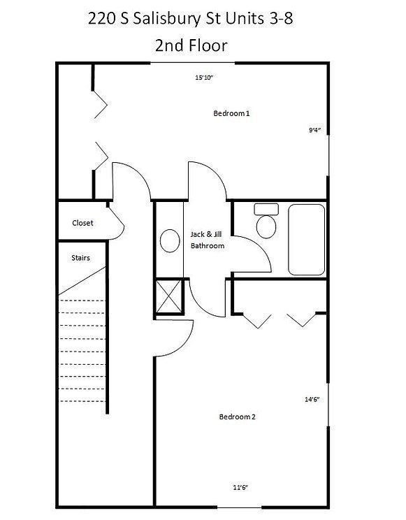
Quick Highlights:
Beds
4
Baths
2.5
Square Footage
1254-1487
Features
- Spacious Living Room
- Stainless Steel Kitchen Appliances
- In Unit Laundry
Appliances
- Fridge
- Oven
- Microwave
- Dishwasher
- Washer and Dryer In Unit
Utilities
Paid by Resident:
Electric
Water
Sewage
Cable
Internet
Paid by Muinzer:
Trash

















